
Pandemia generată de virusul Covid-19 și efectele sale asupra evoluției noastre individuale și profesionale ne-au pus în situația de a ne schimba optică asupra libertății și a noțiunii de “afară”. Oricine este norocosul deținător al unei curți la țară, in zona periurbană sau a unei bucăți de teren (oriunde ar fi amplasată), a ajuns să prețuiască exteriorul mai mult ca niciodată. În lipsa spațiilor de socializare clasice, o grădină proprie, cu spații pentru mișcare și odihnă este ideală.
Dacă ai o grădină și plănuiești să ridici acolo o mică construcție pentru zilele tale de relaxare și timp petrecut “afară”, iată mai jos 3 proiecte de case prefabricate, despre care poți discuta cu constructorii din zona ta.
Te rog reține: Sporucasei.ro nu construiește și nu proiectează astfel de căsuțe, îți oferă doar idei din care să te inspiri.
O căsuța prefabricată de 46 mp
Această căsuță este proiectată și livrată la cheie de către un consorțiu format din companiile Koto (UK) s Abodu (USA). Aceasta nu este singurul model conceput de cele 2 companii, dar este cel mai compact și abordabil ca și căsuță de grădină, căsuță de vacanță, căsuță de oaspeți sau un spațiu suplimentar de cazare și lucru în curtea din spate.
Căsuța are doar 4.26 metri lățime, și poate fi transportată cu camionul direct la locul de amplasare. Amenajarea și compartimentarea sunt inspirate de stilul scandinav, simplist și luminos, fără a se pierde însă nimic din confort.
Structura compactă și practică include o zonă de living deschisă cu uși mari de sticlă spre o tereasa descoperită, o bucătărie mică, o baie cu cabină de duș și un dormitor cu dressing inclus.
Spațiul util are 45.98 metri pătrați, iar depozitările ingenioase de sub pat de exemplu, sau cele integrate în banca din living, au permis amenajarea luminoasă și foarte aerisită pe care o vezi.
Click pe imagine pentru a deschide galeria.

Vedere din fata 
Terasa 
Living 
Dining 
Mica bucatarie 
Dormitorul 
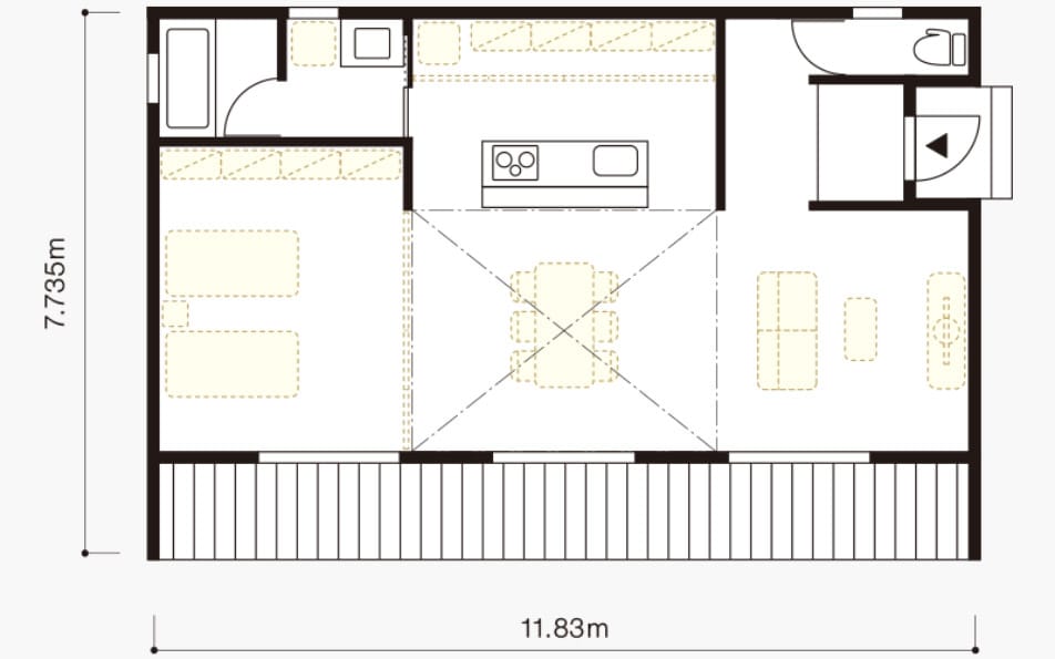
Casa Yo no Ie în stil japonez, 74 mp
Această căsuță are 74 mp și este gândită pentru zona periurbană.
Căsuța are 3 zone distincte – dormitor, living și bucătărie – toate deschise spre terasă și grădină prin panouri mari de sticlă. Are un singur dormitor și este proiectată pentru cuplurile la început sau la final de drum, dar și ca o căsuță de vacanță/grădină – de aici planul open space.
Click pe imagine pentru a deschide galeria.

Vedere din fata 
Open space 
Zona tampon – dining 
Bucataria 
Dormitorul 
Zona de relaxare 
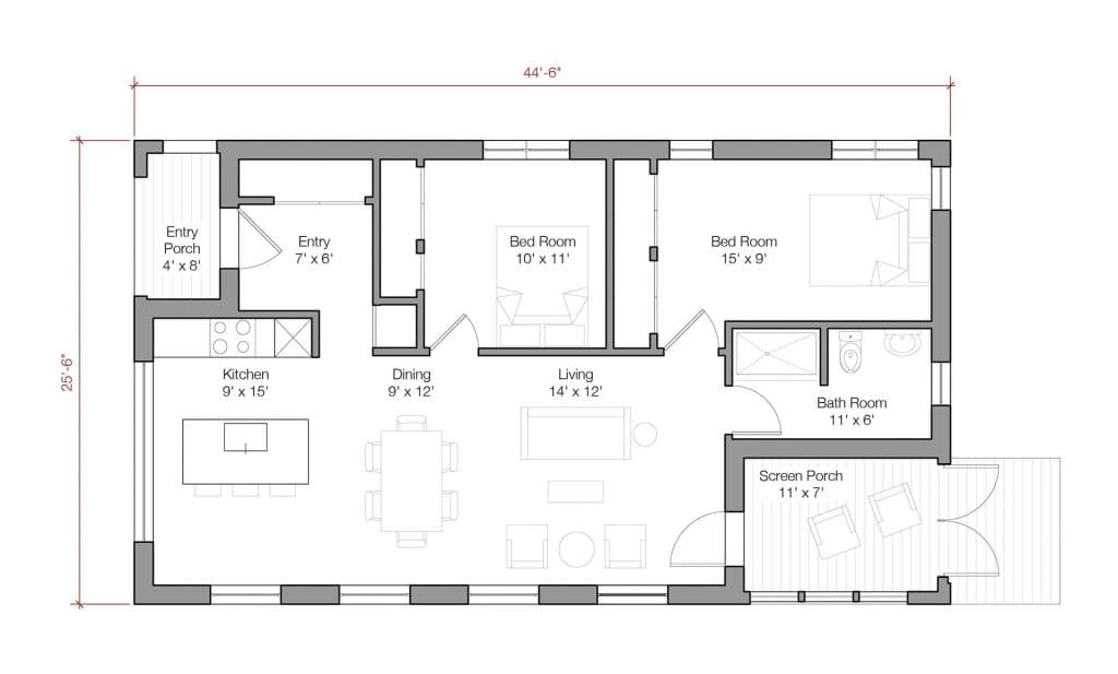
Casă cu 2 dormitoare, 92 mp
House on a Knoll este un proiect de casă eficientă energetic a celor de la GO Logic LLC. Acest proiect include 2 dormitoare, 2 băi, și o zonă de zi open space, formată din bucătăria, zona de luat masa și living, plus un mic birou. Finisajele interioare și exterioare sunt simple și provin din zona.
Click pe imagine pentru a deaschide galeria.
Sperăm să vă inspire!








































Casa Yo no Ie în stil japonez, 74 mp este frumoasa dar nu spune nimic de pret.Vreau un pret pe m2 sau eu stiu un pret per bucata la gata.
Buna ziua
Pentru o cotatie de pret va trebui sa va adresati unui constructor local.
Noi am prezentat acest proiect pentru inspiratie.
Multumim ca ne cititi,
sporulcasei.ro/blog